Available
London E8 – Retail Premises
92 Amhurst Road, Hackney, London E8 2BGRetail Premises with Large Yard to Rent
Property Features
- Comprises single-storey building with yard
- Suitable for variety of uses (Class E)
- Available on a new lease with flexible terms
- Situated within 1 min walk from Hackney Downs Railway Station, with nearby occupiers include Beauty Salon, Restaurant, Launderette and more.
Key Features
Location Description
Hackney lies approximately 4 miles to the north-east of Central London, being between Highbury and Stratford. The area affords excellent public transportation facilities with Hackney Central and Hackney Downs rail stations lying at either end of Amhurst Road. The property is situated within 1 min walk from Hackney Downs Railway Station, with nearby occupiers include Beauty Salon, Restaurant, Launderette and more.
Property Description
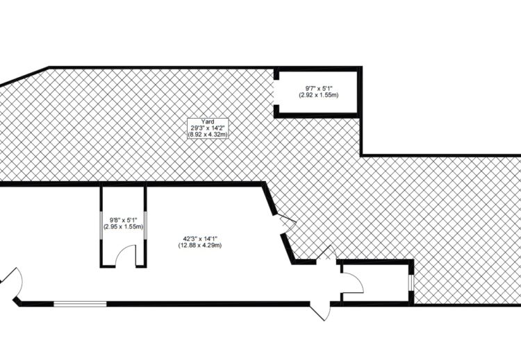
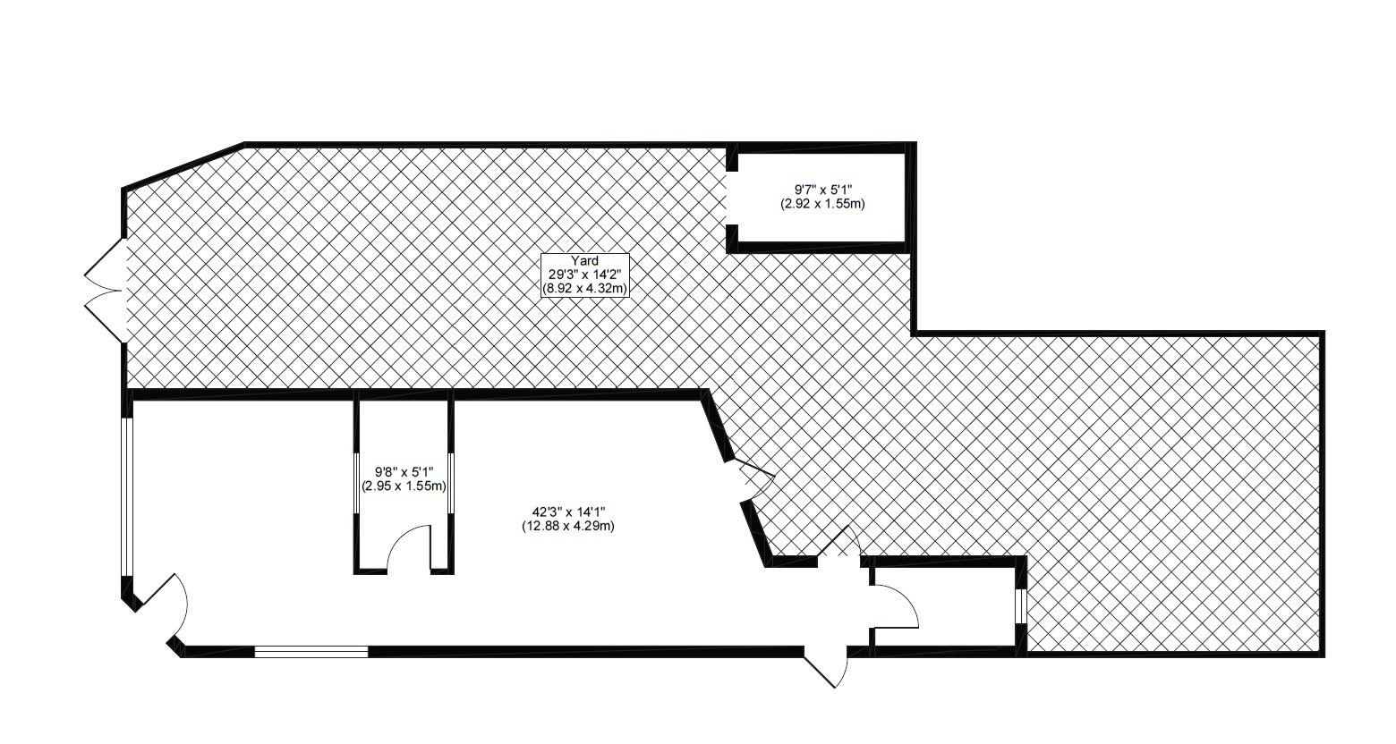
Comprises detached single-storey building previously t/a Tattoo Studio. The property benefits from large fenced yard, suitable for seating/customer area or car parking, providing the following accommodation and dimensions:
Ground Floor: 51 sq m (549 sq ft)
Open plan retail, 2 small rooms
External Storage: 5 sq m (54 sq ft)
Outdoor Area: 100 sq m (1,076 sq ft)
Total GIA: 56 sq m (603 sq ft)
Total Plot Area: 156 sq m (1,679 sq ft)
Ground Floor: 51 sq m (549 sq ft)
Open plan retail, 2 small rooms
External Storage: 5 sq m (54 sq ft)
Outdoor Area: 100 sq m (1,076 sq ft)
Total GIA: 56 sq m (603 sq ft)
Total Plot Area: 156 sq m (1,679 sq ft)
Terms
Available on a new lease with terms to be agreed by negotiation
Rent: £576.92 per week (PCM: £2,500)
Deposit: £7,500 (3 Months)
Rent: £576.92 per week (PCM: £2,500)
Deposit: £7,500 (3 Months)
EPC
The property benefits from a C Rating. Certificate and further details available on request.









