Available
Aylesbury – Children`s Care Home
59 Redcurrant Avenue, Aylesbury, Buckinghamshire HP18 0ZHFreehold 3-Bedroom Children`s Care Home Investment
Price
£650,000
Rent P.A.
Vacant
Tenure
Freehold
Area
1,238 SQ FT
VAT Applicable
No
Sector
Investment Consideration
- Vacant possession
- ERV: £50,000 p.a. GIY: 7.69%
- VAT is NOT applicable to this property
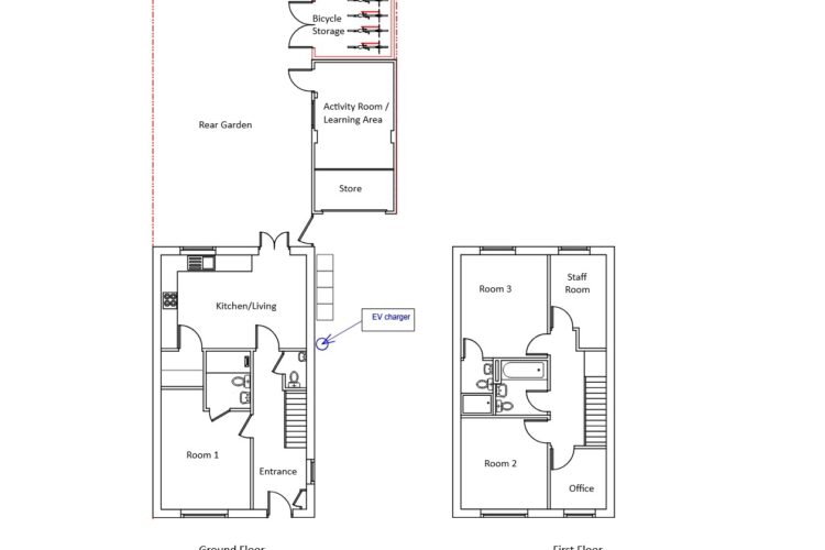
- Comprises new-build in 2023 residential house with planning for 3 Children`s Care Home (C2)
- Benefits from large garden, activity room and two off-street car parking spaces with EV charger
- Situated in primarily residential area within 0.7 miles (15 min walk) from Aylesbury Vale Parkway Train Station, Sainsbury`s Local, Takeaway, Miller & Carter Steak House, Esquires Coffee and more.
Key Features
Tenure
Freehold
VAT
VAT is not applicable.
Property Description
Comprises semi-detached house with planning for 3 Children`s Care Home (C2). The property benefits from 2 off-street car parking spaces with EV charger, large garden and outbuilding, providing the following accommodation and dimensions:
Ground Floor: entrance, kitchen/living, room 1 (en-suite), wc
First Floor: room 2, room 3 (en-suite), office, staff room, bathroom
Rear Outbuilding: activity room/ learning area, storage, bicycle storage
Total GIA: 115 sq m (1,238 sq ft)
Ground Floor: entrance, kitchen/living, room 1 (en-suite), wc
First Floor: room 2, room 3 (en-suite), office, staff room, bathroom
Rear Outbuilding: activity room/ learning area, storage, bicycle storage
Total GIA: 115 sq m (1,238 sq ft)
Tenancy Description
The property is at present vacant. ERV: £50,000 per annum.
Location Description
The attractive market town of Aylesbury is located on the northern side of the Chiltern Hills, some 36 miles north-west of Central London. The town benefits from good road communications via the A41, which provides direct access to the M25 and M40 motorways, as well as the A413 and A418. Berryfields offers excellent road links towards surrounding towns and motorway networks. Train links to London from Berryfields very own Train Station Aylesbury Vale Parkway. A regular bus route connects the Aylesbury & Bicester. The property is situated in primarily residential area within 0.7 miles (15 min walk) from Aylesbury Vale Parkway Train Station, Sainsbury`s Local, Takeaway, Miller & Carter Steak House and more.
















