Available
Barnstaple – Bar/Nightclub & 2-Bed Flat
42 Boutport Street, Barnstaple, Devon EX31 1SEFree-of-Tie Former Nightclub/Bar with Flat to Rent
Property Features
- Comprises large former nightclub/bar at first floor with 2-bedroom owners flat at second floor
- Available on a new lease with flexible terms
- Barnstaple is the main commercial, administrative and economic centre of North Devon and a popular tourist destination on the North Devon coast
- The property is situated in the heart of the town centre with occupiers nearby including Coral, Barclays, Estate Agents, Halfords Autocentre, Barnstaple Market and large public car park.
Key Features
Location Description
Barnstaple is the main commercial, administrative and economic centre of North Devon and a popular tourist destination on the North Devon coast, approximately 34 miles north-west of Exeter. The town is located on the A361, which provides a direct link to the M5 Motorway and the A377 to Exeter. Barnstaple Rail Station provides regular rail services to Exeter (1 hour 10 minutes fastest). The property is situated in the heart of the town centre with occupiers nearby including Coral, Barclays, Estate Agents, Halfords Autocentre, Barnstaple Market and large public car park (1 min walk).
Property Description
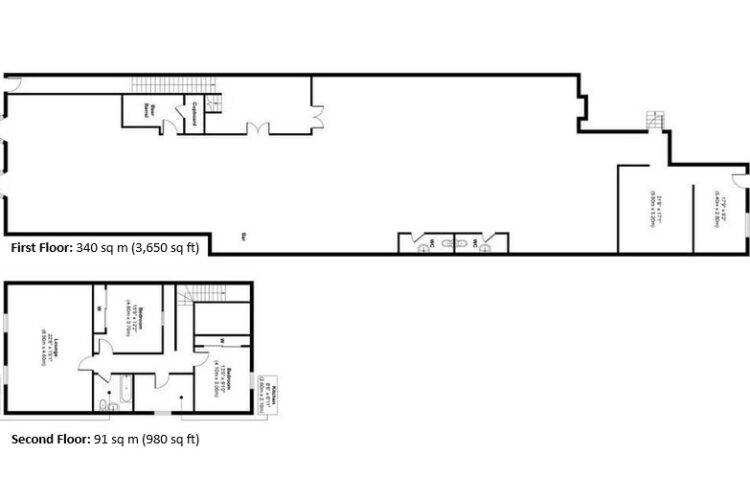
Comprises large former nightclub/bar at first floor with 2-bed owners flat at second floor. The property is accessed from ground floor entrance, situated on the main retail parade, providing the following accommodation and dimensions:
First Floor: 340 sq m (3,650 sq ft)
Open plan bar/nightclub, cellar, storage, office, wc`s
Second Floor: 91 sq m (980 sq ft)
2 Bedrooms, kitchen/living, bathroom
Total GIA: 431 sq m (4,630 sq ft)
First Floor: 340 sq m (3,650 sq ft)
Open plan bar/nightclub, cellar, storage, office, wc`s
Second Floor: 91 sq m (980 sq ft)
2 Bedrooms, kitchen/living, bathroom
Total GIA: 431 sq m (4,630 sq ft)
Terms
Available on a new lease with terms to be agreed by negotiation
Rent: £695 per week (PCM: £3,011.66)
Deposit: £9,035 (3 Months)
Rent: £695 per week (PCM: £3,011.66)
Deposit: £9,035 (3 Months)
EPC
Certificate and further details available on request.












