London SE11 – Office Space to Rent
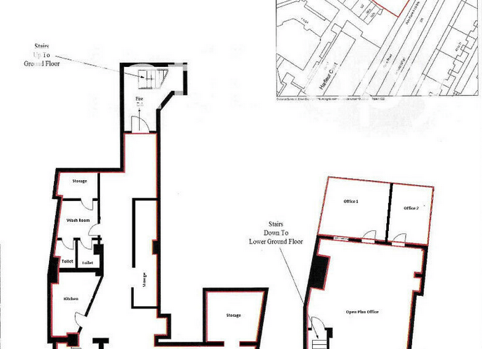
146-148 Newington Butts, London SE11 4RNGround floor and Basement Office
Property Features
- Comprises ground floor/basement office space.
- Total area size 170 sq m (1,830 sq ft)
- Central heating
- Kitchen
- Storage areas
- Washer/dryer area
- CCTV
- Recently renovated toilets and separated handwash/basin area
- Rear fire escape from basement
- Located within 5 minute walk from Elephant & Castle and Kennington Tube Stations.
- Occupiers close by include Domino`s Pizza.
Key Features
Location Description
The Elephant and Castle is an area around a major road junction in south London, England, in the London Borough of Southwark. The property is located within 5 minutes walk from Elephant & Castle and Kennington tube stations. Elephant & Castle serves both the Northern and Bakerloo lines, as well as National Rail with quick and easy transitions from major stations such as London Bridge, Waterlook Paddington. Zone 1. Kennington serves the Northern line. Elephant & Castle is currently undergoing a major £4bn redevelopment, with over 24 development projects happening now or in the next few years, including high scale housing and office space, as well as a large shopping centre being rebuilt in the town centre area. This is estimated to bring over 10,000 jobs to the area, and 3,000 new homes. This is a perfect opportunity to get into the next hot area in London, which is already full of life.
Property Description
Comprises decorated and fitted out ground floor and basement private office space in the heart of Elephant and Castle in South London. The office space is perfect for a small business looking to expand into a slightly larger area. Accommodates 15 - 20 people comfortably.
*Note - Vacant and empty property upon new tenancy. Photos reflect current tenant furniture, which is not included in the rental price.
*Note - Vacant and empty property upon new tenancy. Photos reflect current tenant furniture, which is not included in the rental price.
Terms
Available on a new lease with terms to be agreed by negotiation
















