Available
Newton Aycliffe – Large Office
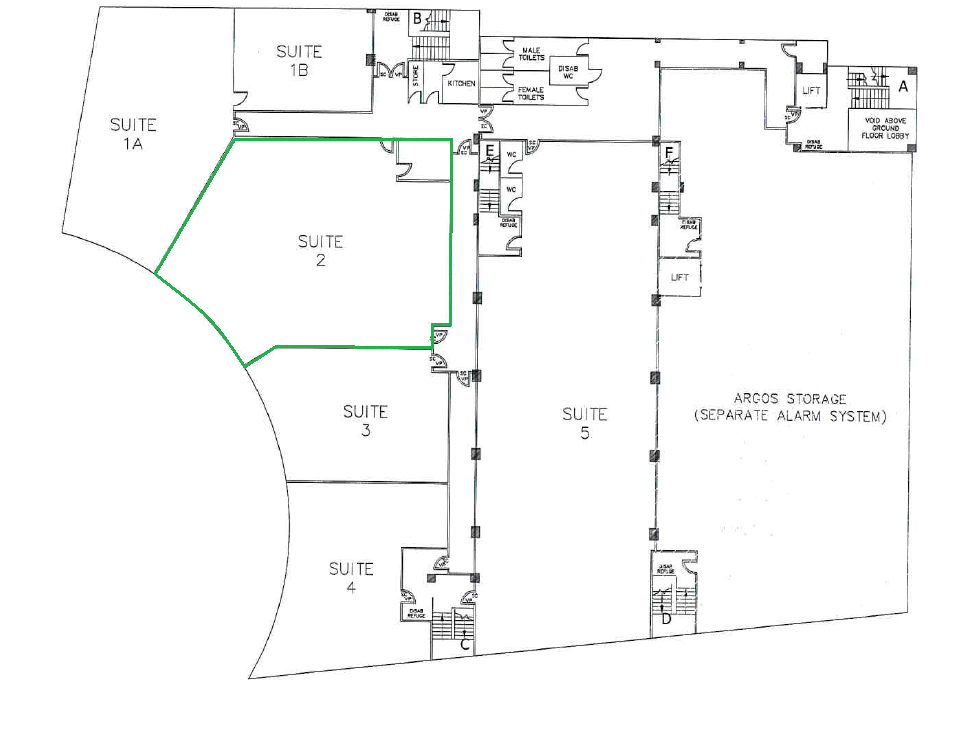
Suite 2, Avenue House, Newton Aycliffe DL5 4DHFirst Floor Office Unit to Rent
Property Features
- Comprises first floor office suite
- VAT is applicable to this property
- Available on a new lease with terms to be agreed by negotiation
- Occupiers close by include Tesco Extra, Costa Coffee, Aldi, Argos and Greggs, amongst others.
Key Features
Location Description
Newton Aycliffe is a town in County Durham, England. The A167 (old A1) is the main road to the town, it runs to Durham and Newcastle upon Tyne (30 miles) in the north and Darlington (8 miles) and Northallerton in the south. By bus, the town has bus services provided by Arriva North East to Bishop Auckland, Durham, Darlington, Spennymoor, Ferryhill, Peterlee, Sunderland and Sedgefield. Town services are provided by Hodgsons service 17. Occupiers close by include Tesco Extra, Costa Coffee, Aldi, Argos and Greggs, amongst others.
Property Description
Comprises first floor open plan office suite, with shared kitchen and wc, providing the following accommodation and dimensions:
Suite 2: 220 sq m (2,368 sq ft)
Open plan office, store
Suite 2: 220 sq m (2,368 sq ft)
Open plan office, store
Terms
Available on a new lease with terms to be agreed by negotiation
Rent: £307.69 + VAT per week (PCM: £1,333.33 + VAT)
Deposit: £4,000 (3 Months)
Service Charge: £9,000 p.a. + VAT
inc. gas bill, kitchen and lift facilities
Rent: £307.69 + VAT per week (PCM: £1,333.33 + VAT)
Deposit: £4,000 (3 Months)
Service Charge: £9,000 p.a. + VAT
inc. gas bill, kitchen and lift facilities
EPC
The property benefits from a C Rating. Certificate and further details available on request.







