Available
Newtown – Takeaway & Residential Flat
9 Severn Street, Newtown, Powys SY16 2AQGround Floor Takeaway with Residential Flat to Rent
Property Features
- Comprises takeaway shop with large residential accommodation at first and second floor
- Benefits from storage outbuilding and basement
- Takeaway comes fully fitted and ready for occupation
- Previously rated 5* on Tripadvisor and Facebook
- Available on a new lease with flexible terms
- Located in the heart of the town centre with occupiers nearby include Costa Coffee, HSBC, Nationwide, Restaurants, Cafe and more.
Key Features
Location Description
Newtown is the largest town in the county of Powys, located 13 miles south of Welshpool and 36 miles south-west of Shrewsbury. The town is situated on the River Severn at the junction of the A489 and the A483. Newtown (Powys) Rail Station provides frequent rail services to Birmingham International, Shrewsbury and Aberystwyth. The property is situated in the heart of the town centre with occupiers nearby include Costa Coffee, Nationwide and more.
Property Description
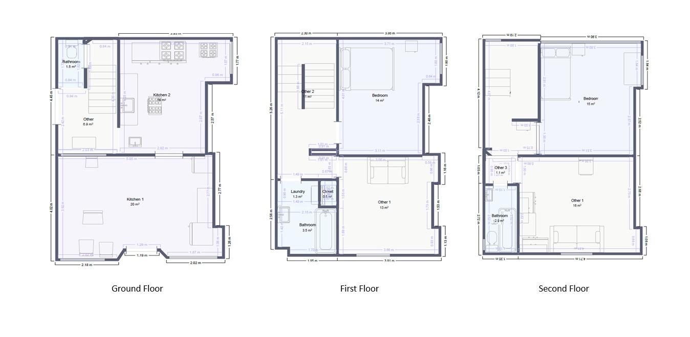
Comprises ground floor takeaway with additional storage outbuilding. The takeaway comes with fully equipped commercial kitchen and ready for occupation. The residential flat above comprises 4 rooms and 2 bathrooms, providing the following accommodation and dimensions:
Ground Floor: 34 sq m (366 sq ft)
Open plan takeaway, commercial kitchen
Storage: 31 sq m (333 sq ft)
Open plan storage
First Floor: 40 sq m (430 sq ft)
2 rooms, bathroom
Second Floor: 40 sq m (430 sq ft)
2 rooms, bathroom
Total GIA: 145 sq m (1,559 sq ft)
Ground Floor: 34 sq m (366 sq ft)
Open plan takeaway, commercial kitchen
Storage: 31 sq m (333 sq ft)
Open plan storage
First Floor: 40 sq m (430 sq ft)
2 rooms, bathroom
Second Floor: 40 sq m (430 sq ft)
2 rooms, bathroom
Total GIA: 145 sq m (1,559 sq ft)
Terms
Available on a new lease with terms to be agreed by negotiation
Rent: £346.15 per week (PCM: £1,500)
Deposit: £4,500 (3 Months)
Rent: £346.15 per week (PCM: £1,500)
Deposit: £4,500 (3 Months)
EPC
Certificate and further details available on request.









