Oldham – Children’s Home
65 Queens Road, Oldham, Greater Manchester OL8 2BA4-Bed Children's Home (C2) to Rent
Property Features
- Comprises three storey semi-detached children's home
- Property benefits from landscaped amenity space at front and detached double garage with driveway to the rear
- VAT is NOT applicable to this property
- Located in predominantly residential area, adjacent to Longwood Lodge Care Home and overlooking Alexandra Park
Key Features
Location Description
Oldham is a large town in Greater Manchester, England, amid the Pennines and between the rivers Irk and Medlock, 5.3 miles southeast of Rochdale and 6.9 miles northeast of Manchester. The surrounding area is residential in character with a predominance of large two and three storey brick properties. Several residential care homes are in operation along this section of Queens Road, including the adjacent Longwood Lodge, and the site overlooks Alexandra Park to the south.
Property Description
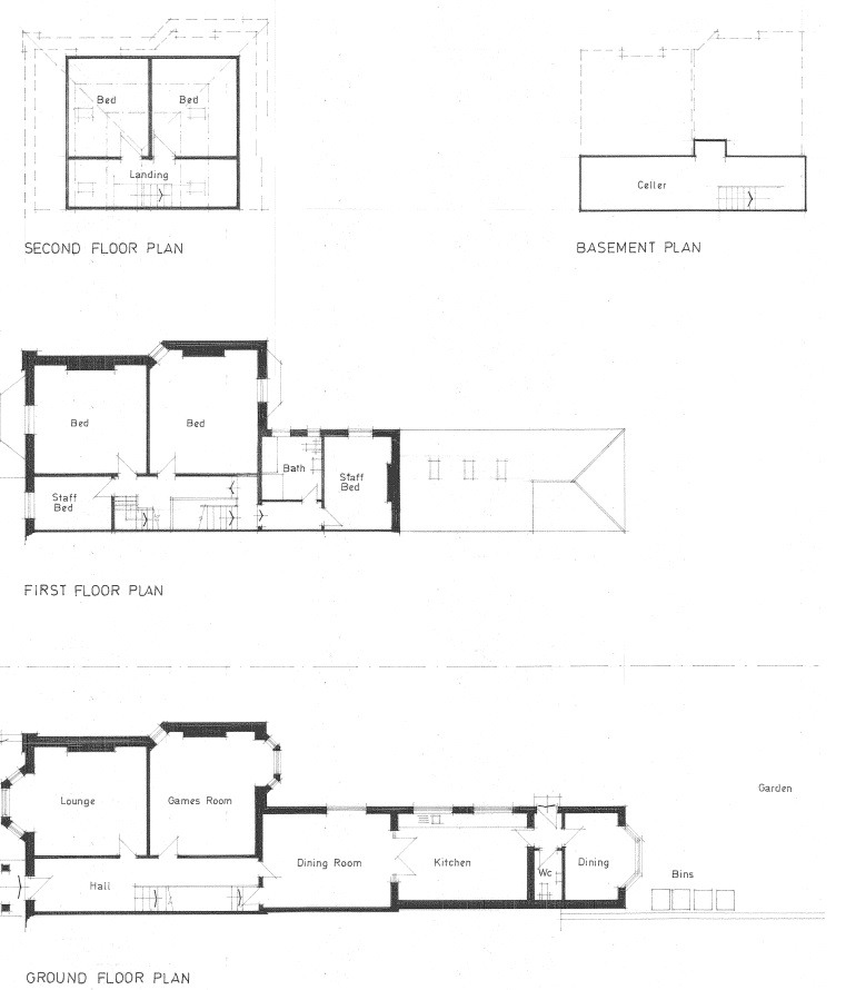
Comprises semi-detached three storey building recently converted into 4-bedroom children's home, providing the following accommodation and dimensions:
Ground Floor: Lounge, Games Room, 2 Dining Rooms, Kitchen
First Floor: 2 Double Bedrooms, 2 Single Bedrooms, Bathroom
Second Floor: 2 Double Bedrooms
Basement: Cellar/Storage
Ground Floor: Lounge, Games Room, 2 Dining Rooms, Kitchen
First Floor: 2 Double Bedrooms, 2 Single Bedrooms, Bathroom
Second Floor: 2 Double Bedrooms
Basement: Cellar/Storage
EPC
Certificate and further details available on request.






