Under Offer
Colchester – Restaurant & 5-Bed Flat
31 St. Botolphs Street, Colchester, Essex CO2 7EAFreehold Three-Storey Restaurant & Residential Investment
Price
£495,000
Rent P.A.
£45,000
Yield
9.09%
Tenure
Freehold
Lease Term
10
Years Left on Lease
9y 10m
Area
3,210 SQ FT
VAT Applicable
No
Sector
Investment Consideration
- Comprises large ground floor restaurant with 5-bed residential flat at first and second floor
- Benefits from garage and 1 parking space at rear
- Situated within 2 minute walk from Colchester Town rail station, with occupiers nearby including Subway, Ladbrokes, Convenience Store, Restaurants, Barber`s and many more
Key Features
Tenure
Freehold
VAT
VAT is not applicable.
Property Description
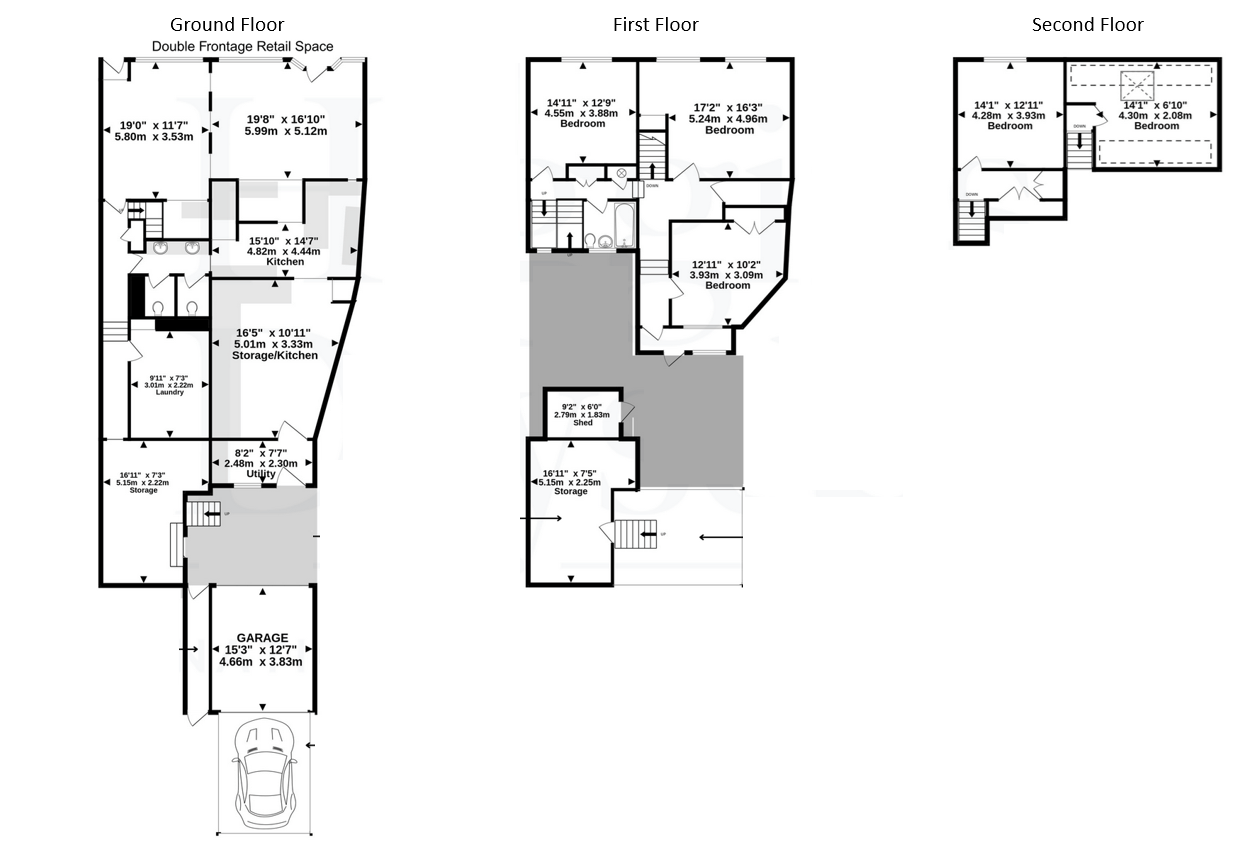
Comprises double-fronted commercial/retail space on the ground floor with a bar area, a serving counter, and to the rear of this, a commercial kitchen with storage and access to the courtyard, garage and parking space and rear access through a shared ginnel. There are two storage rooms accessed separately from the courtyard. The customer washrooms and laundry area are located at the rear of the ground floor. The residential accommodation is located on the first and second floors, with access from the ground floor it comprises three double bedrooms, a bathroom and storage on the first floor, as well as a lobby exit to the flat roof to the rear. The second floor comprises a further two bedrooms and storage areas.
Ground Floor: 168 sq m (1,810 sq ft)
Open plan restaurant, commercial kitchen, storage rooms
First Floor: 90 sq m (970 sq ft)
Three bedrooms, bathroom, multiple storage areas
Second Floor: 40 sq m (430 sq ft)
two bedrooms, multiple storage areas
Total GIA: 298 sq m (3,210 sq ft)
Ground Floor: 168 sq m (1,810 sq ft)
Open plan restaurant, commercial kitchen, storage rooms
First Floor: 90 sq m (970 sq ft)
Three bedrooms, bathroom, multiple storage areas
Second Floor: 40 sq m (430 sq ft)
two bedrooms, multiple storage areas
Total GIA: 298 sq m (3,210 sq ft)
Tenancy Description
The property is at present let to Hunger Hub PVT Ltd t/a Wraps & Wings* (with personal guarantee) for a term of 10 years from 15th October 2025 at a current rent of £45,000 per annum and the lease contains full repairing and insuring covenants. Rent review every 3 years linked to RPI. Tenant option to determine in the 5th year with min 6 months notice. Deposit held of £10,000.
*The tenant will be operating the site as part of the Wraps & Wings franchise network, which has grown to over 30 locations nationwide. The franchise has been active for over 10 years and is recognised for its range of gourmet wraps, wings, and burgers.
*The tenant will be operating the site as part of the Wraps & Wings franchise network, which has grown to over 30 locations nationwide. The franchise has been active for over 10 years and is recognised for its range of gourmet wraps, wings, and burgers.
Tenancies & Accommodation
Location Description
The City of Colchester, with a resident population approaching 200,000 people and, one of the fastest growing urban centres in the UK over the past 20 years, provides excellent communication links via the A14 to the M25 (J. 28) Stansted Airport and the M11 via the A120 and to the Midlands via the A14 at Ipswich. There are mainline rail links to London Liverpool Street with a fastest journey time of 46 minutes. The property occupies a busy arterial road, 2 minute walk from Colchester Town rail station and close to the First Site art gallery and links to the Hythe commercial area to the east. Occupiers nearby include Subway, Ladbrokes, Convenience Store, Restaurants, Barber`s and many more.






