Available
London N17 – Retail Shop with Planning for 2 Flats
491A High Road, Tottenham, London N17 6QAFreehold Retail Investment with Residential Development Opportunity
Price
£695,000
Rent P.A.
£30,000
Yield
4.32%
Tenure
Freehold
Lease Term
7 Years
Years Left on Lease
6y 5m
Area
850 SQ FT
VAT Applicable
No
Sector
Investment Consideration
- Comprises ground floor retail shop with air rights above
- Planning approved in June 2024 for erection of first and second floor extension to provide 2 x 1-bed self-contained flats
- Located next to Bruce Grove Overground station with nearby occupiers including Nationwide, Asda, Santander, McDonalds and Halifax, amongst others
Key Features
Tenure
Freehold
VAT
VAT is not applicable.
Property Description
The property comprises ground floor shop t/a curtain retailer and provides the following accommodation and dimensions:
Ground Floor: Shop 79 sq m (850 sq ft)
Open plan retail, Storage, WC
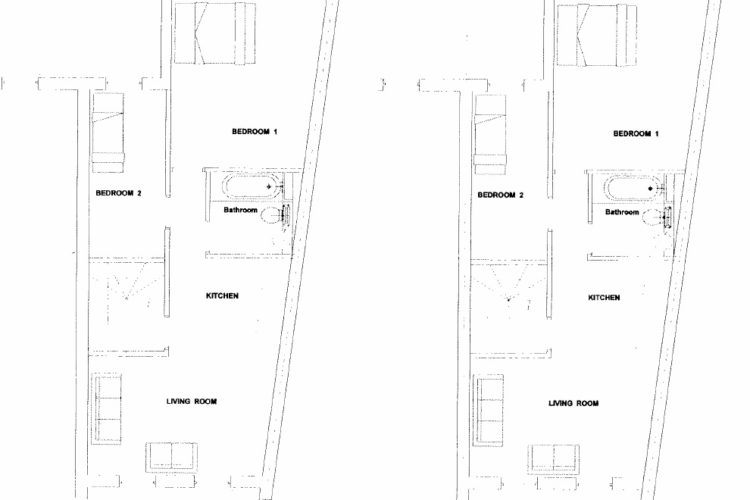
Development Opportunity:
Planning approved in June 2024 for erection of first and second floor extension to provide 2 x 1-bed self-contained flats, accessed from the main high street by its own private new entrance doorway, providing the following accommodation and dimensions:
First Floor
Flat 1: 51 sq m (548 sq ft)
Open plan kitchen/living room, bedroom, bathroom
Second Floor
Flat 2: 49 sq m (527 sq ft)
Open plan kitchen/living room, bedroom, bathroom
Ground Floor: Shop 79 sq m (850 sq ft)
Open plan retail, Storage, WC
Development Opportunity:
Planning approved in June 2024 for erection of first and second floor extension to provide 2 x 1-bed self-contained flats, accessed from the main high street by its own private new entrance doorway, providing the following accommodation and dimensions:
First Floor
Flat 1: 51 sq m (548 sq ft)
Open plan kitchen/living room, bedroom, bathroom
Second Floor
Flat 2: 49 sq m (527 sq ft)
Open plan kitchen/living room, bedroom, bathroom
Tenancy Description
The property is at present let to an Individual for a term of 7 Years from June 2025 at a current rent of £30,000 per annum and the lease contains full repairing and insuring covenants.
Tenancies & Accommodation
Location Description
Bruce Grove is a ward in Tottenham, enclosed by Lordship Recreation Ground, Lordship Lane, Philip Lane, and the High Road. Tottenham is a sprawling, up-and-coming area known for the huge Tottenham Hotspur Stadium, opened in 2019 and home to the soccer team of the same name. Local shops, global eateries, fast-food joints, and cafes line the busy High Road, and Bruce Castle Museum has displays on local history in a 16th-century manor house set in parkland. The property is located next to Bruce Grove Overground Station which provides direct service to Liverpool Street Station. Occupiers nearby including Nationwide, Asda, Santander, Holland & Barrett, McDonalds and Halifax, amongst others.






