Available
Colwyn Bay – Retail Shop
26A Penrhyn Road, Colwyn Bay, Clwyd LL29 8LGGround Floor Retail Shop to Rent
Property Features
- Comprises ground floor retail shop
- Available on a new lease with terms to be agreed by negotiation
- Flexible terms to suit your needs, the landlord is open to lease or license, fixed rent or revenue-sharing arrangement
- Opportunity to lease cellar storage comprising 87 sq m (936 sq ft) to be negotiated separately
- Situated within short walk to Colwyn Bay train station which provides regular services to Chester, Manchester and Holyhead
- Occupiers close by include Santander, Nationwide, Gym and more.
Key Features
Location Description
Colwyn Bay is a popular resort town on the North Wales Coast and close to Llandudno in close proximity to the A55 (Holyhead and Chester Expressway) with links to the M56 motorway. The train station is close to the property and provides regular services to Chester, Manchester and Holyhead. Occupiers close by include Santander, Nationwide, Pizzeria, Gym and many more.
Property Description
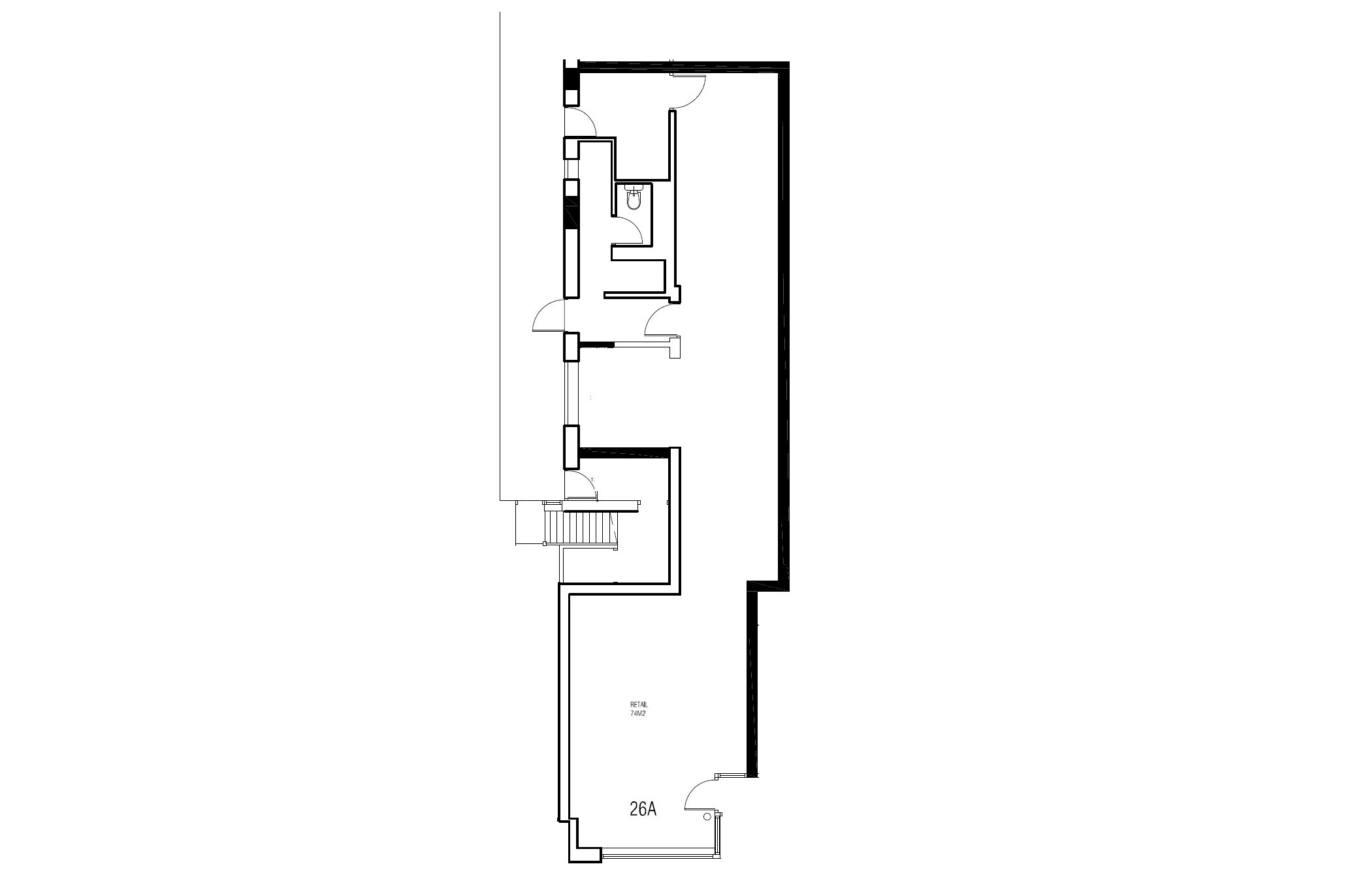
Comprises ground floor retail premises, suitable for variety of uses (Class E), providing the following accommodation and dimensions:
Ground Floor: 74 sq m (797 sq ft)
Open plan retail, Storage, Kitchen, WC
Ground Floor: 74 sq m (797 sq ft)
Open plan retail, Storage, Kitchen, WC
Terms
Available on a new lease with terms to be agreed by negotiation
Rent: £230.77 + VAT per week (PCM: £1,000 + VAT)
Deposit: £3,000 (3 Months)
Rent: £230.77 + VAT per week (PCM: £1,000 + VAT)
Deposit: £3,000 (3 Months)
EPC
The property benefits from a D Rating. Certificate and further details available on request.





